ALPIN 1

ENERGO  Plus 
Dom mieszkalny jest wykonany z drewna świerkowego, sezonowanego , suszonego, sezonowane 6 lat, heblowanego czterostronnie i impregnowanego przeciw grzybicznie oraz ogniu. Budowany jest w technologi szkieletu drewnianego, którego konstrukcja jest  opatentowana i wykonywana tylko przez naszą firmę już od 40 lat . Konstrukcja ze względu na liczne połączenia ciesielskie i rozwiązania konstrukcyjne stanowi bryłę o bardzo mocnej i stabilnej konstrukcji.
Przekrój ściany  zewnętrznej nośnej 
1. Tynk Akrylowy ( mineralny  ) kolory jasne do wyboru.
2. Elewacja docieplona styropianem elewacyjnym  100 mm + siatka + klej zatarte na szaro.
3. Poszycie konstrukcji zewnętrzna Płyta OSB – 12,00 mm gruba
4. Konstrukcja słupów drewnianych 
5. Wełna mineralna ISOVER 150 mm gruba w konstrukcji drewnianej
6. Folia STROTEX AL  folia paroizolacyjna aluminiowa dodatkowo dająca izolację ściany
7. Ruszt drewniany pod płytę kartonowo-gipsową
8. Płyta kartonowo – gipsowa przykręcona
Przekrój dachu 
9. Blachodachówka wraz z obróbkami blacharskimi oraz orynnowaniem 
10. Łaty dachowe 
11. Kontrłaty
12. Folia dachowa wiatroizolacja 
13. Krokiew 
14. Wełna 200 między krokwiami
15.  Folia STROTEX AL  folia paroizolacyjna aluminiowa dodatkowo dająca izolację ściany
16. Stelaż drewniany pod płyty
17. Płyta karton -gips przykręcona
Przekrój podłogi - strop 
18. Podłogi  z płyty  OSB 22 mm gruba parter-poddasze ( można dowolnie wykończyć) lub podłoga drewniana świerkowa konstrukcyjna 
19. Belki  stropowe 
20. Strop nad parterem ocieplenie wełną  ISOVER  150 mm 
21. Ruszt drewniany pod płytę kartonowo-gipsową
22. Płyta kartonowo – gipsowa przykręcona
Przekrój podłoga parter
23. Podłogi  z płyty  OSB 22 mm gruba parter ( można dowolnie wykończyć) lub podłoga drewniana świerkowa konstrukcyjna 
(  można stosować wylewkę mixokretem na styropianie -  opcja do kalkulacji ) 
24.  Podłoga parter ocieplenie wełną  ISOVER  150 mm 
25. Belki podłogowe parteru 
26. Folia izolacyjna lub papa
Stolarka okienna oraz drzwiowa 
27 Drzwi wewnętrzne komplet- (opcja dodatkowa za dopłatą )
28. Drzwi zewnętrzne 
29. Stolarka okienna PVC  S8000 IQ 6 komorowe 
Parapety 
30. Wewnętrzne konglomerat (jasne kolory)
31. Zewnętrzne metalowe zharmonizowane kolorystycznie z pokryciem dachu
Instalacje 
32. Elektryczna po 2 punkty na jedno pomieszczenie ( 1 punkty światło plus 1 punkty gniazdo zakończone puszką)
Skrzynka wewnętrzna z bezpiecznikami 
33. Wodno -kanalizacyjna 5 punkty odpływ – dopływ zakończone korkiem 
34. CO- na jedno pomieszczenie jeden punkt instalacji zakończone korkiem 
35. Komin z wkładem ceramicznym  ocieplony pod kominek fi 200 z jedną wentylacją
36. Kominki 3 szt.  wentylacyjne do łazienki, odpowietrzenie kanalizacji , okap kuchnia 
Dodatkowe elementy
37. Ściany nośne oraz działowe wygłuszane wełną zgodnie z przekrojem według konstrukcji 
38. Płyta karton gips -przykręcone 
39. Klatka schodowa konstrukcyjna  z blatami płyty OSB
41. Elewacja - okładzina zewnętrzna drewniana w wybranych miejscach
40  Dokumentacja techniczna - 6 egzemplarze z opracowaniami branżowymi.

Firma dodatkowo może wykonać:

Fundament – ławy kopane na gł. 1.20 m do ziemi + wyrównanie pod wylewkę poziomu środka fundamentu + izolacja cieplna  / styropian , styrodur /  osadzenie wg szablonu  kotew ø 12  stalowych  do kotwienia domu + wykonanie izolacji poziome z papy pod budowę domu + instalacje wodne i kanalizacyjne.

Całość fundamentu jest wykonana zgodnie z projektem Architektonicznym wydanym  przez firmę DREV-IMED.

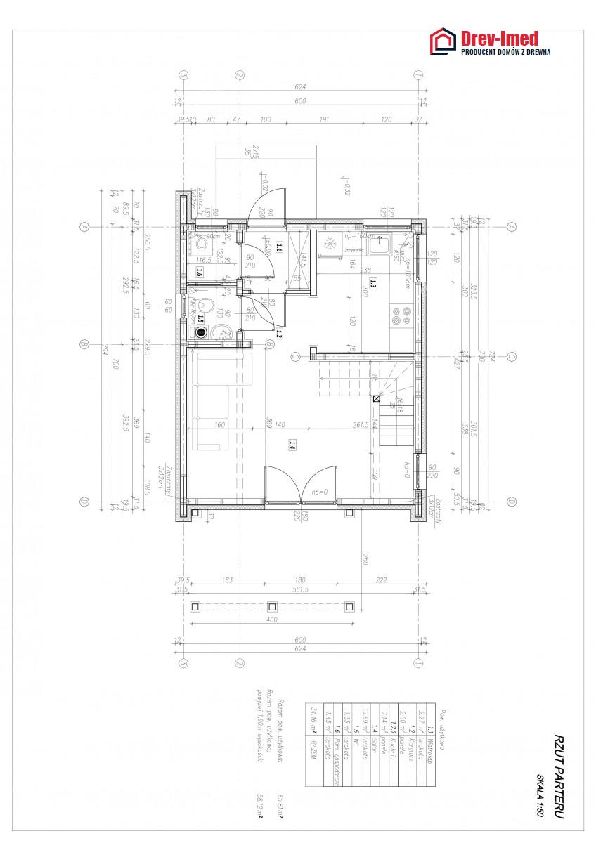
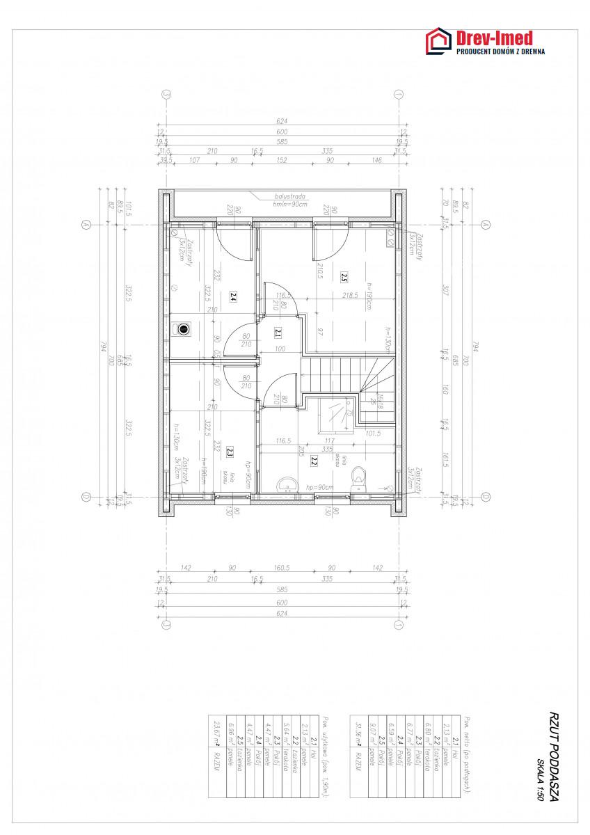
rzuty


 

Domy szkieletowe Bielsko

Szanowni Państwo

Spotkania  prosimy ustalać  telefonicznie.

DREV-IMED

Biuro obsługa klienta:  

43-300 Bielsko-Biała
ul. Krakowska 532 
tel. +48 509-216-542

 

Ewelina Maślanka

tel. +48 509-216-542

biuro@drevimed.pl

drevimed1.ewelina@gmail.com

 

 

 

 

Godziny otwarcia:

Pn - Pt : od 10:00 do 16:00

Sobota : od 10:00 do 13:00

Niedziela: Nieczynne

Ekspozycja nr 1:

ul. Krakowska 532, Bielsko-Biała

tel. +48 509-216-542

 

Ekspozycja nr 2:

 

więcej informacji.

Szanowni Państwo

Oglądanie ekspozycji DREV-IMED jest możliwe po wcześniejszym umówieniu telefonicznym. Serdecznie zapraszamy do zapisywania się dzwoniąc pod nr telefonów lub wyślij SMS w treści wpisując " Ekspozycja TAK" , a skontaktujemy się Tel kom . Orange 509 216 542

NIEDZIELE - Nieczynne

Zostaw swój kontakt :





Oddzwonimy wyślemy wiadomość- Hej!!!