
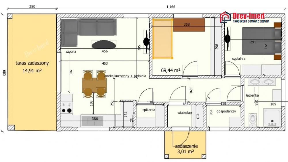
Model: „HALINKA ”
70m2 Pow. zabudowy:
TARAS ZADASZONY : 14 ,90 m2 Kąt dachu: 25°-30°
Przekrój ściany zewnętrznej nośnej
1. Tynk Akrylowy ( mineralny ) kolory jasne do wyboru.
2. Elewacja docieplona styropianem elewacyjnym 100 mm + siatka + klej zatarte na szaro.
3. Poszycie konstrukcji zewnętrzna Płyta OSB – 12,00 mm gruba
4. Konstrukcja słupów o przekroju
5. Wełna mineralna ISOVER 150 mm gruba w konstrukcji drewnianej
6. Folia STROTEX AL folia paroizolacyjna aluminiowa dodatkowo dająca izolację ściany
7. Ruszt drewniany pod płytę kartonowo-gipsową
8. Płyta kartonowo – gipsowa przykręcona
Przekrój dachu
9. Blachodachówka wraz z obróbkami blacharskimi oraz orynnowaniem
10. Łaty dachowe
11. Kontrłaty
12. Folia dachowa
13. Krokiew
Przekrój stropu nad parterem ( strych)
14. Belki stropowe drewniane
15. Strop nad parterem ocieplenie wełną ISOVER 200mm
16. Folia STROTEX AL folia paroizolacyjna aluminiowa dodatkowo dająca izolację ściany
17. Ruszt drewniany pod płytę kartonowo-gipsową
18. Płyta kartonowo – gipsowa przykręcona
Przekrój podłoga parter
19. Podłogi z płyty OSB 22 mm gruba parter ( można dowolnie wykończyć) lub podłoga drewniana świerkowa konstrukcyjna
( można stosować wylewkę mixokretem na styropianie - opcja do kalkulacji )
20. Podłoga parter ocieplenie wełną ISOVER 150 mm
21. Belki podłogowe drewniane
22. Folia izolacyjna lub papa
Stolarka okienna oraz drzwiowa
23. Drzwi wewnętrzne komplet-(opcja dodatkowa za dopłatą)
24. Drzwi zewnętrzne
25. Stolarka okienna PVC S8000 IQ 6 komorowe
Parapety
36. Wewnętrzne konglomerat (jasne kolory)
37. Zewnętrzne metalowe zharmonizowane kolorystycznie z pokryciem dachu
Instalacje
38. Elektryczna po 2 punkty na jedno pomieszczenie ( 1 punkty światło plus 1 punkty gniazdo zakończone puszką)
Skrzynka wewnętrzna z bezpiecznikami
39. Wodno -kanalizacyjna 5 punkty odpływ – dopływ zakończone korkiem
40. CO- na jedno pomieszczenie jeden punkt instalacji zakończone korkiem
41. Komin z wkładem ceramicznym ocieplony pod kominek fi 200 z jedną wentylacją
42. Kominki 3 szt. wentylacyjne do łazienki, odpowietrzenie kanalizacji , okap kuchnia
Strop oraz ściany wewnętrzne
43. Ściany nośne oraz działowe wygłuszane wełną zgodnie z przekrojem według konstrukcji
44. Płyta karton gips -przykręcone
47 .Elewacja - okładzina zewnętrzna drewniana w wybranych miejscach
46. Dokumentacja techniczna - 6 egzemplarze z opracowaniami branżowymi.