

MODEL " MALINKA :
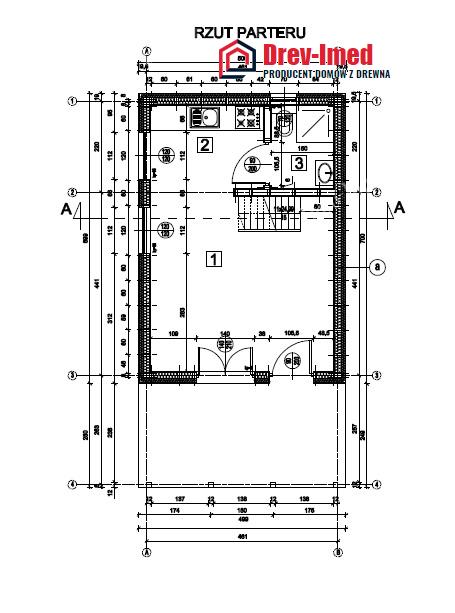
PODSTAWA 5 m X 7 m =35 m2
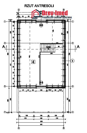
PODDASZE 5 m x 7 m = 35 m2
TARAS 2,5 m X 5 m = 12,50 m2
Standard Plus
Dom mieszkalny jest wykonany z drewna świerkowego, sezonowanego , suszonego, sezonowane 6 lat, heblowanego czterostronnie i impregnowanego przeciw grzybicznie oraz ogniu. Budowany jest w technologi szkieletu drewnianego, którego konstrukcja jest opatentowana i wykonywana tylko przez naszą firmę już od 40 lat . Konstrukcja ze względu na liczne połączenia ciesielskie i rozwiązania konstrukcyjne stanowi bryłę o bardzo mocnej i stabilnej konstrukcji.
Przekrój ściany zewnętrznej nośnej
1. Tynk Akrylowy ( mineralny ) kolory jasne do wyboru.
2. Elewacja docieplona styropianem elewacyjnym 100 mm + siatka + klej zatarte na szaro.
3. Poszycie konstrukcji zewnętrzna Płyta OSB – 12,00 mm gruba
4. Konstrukcja słupów drewnianych
5. Wełna mineralna ISOVER 150 mm gruba w konstrukcji drewnianej
6. Folia STROTEX AL folia paroizolacyjna aluminiowa dodatkowo dająca izolację ściany
7. Ruszt drewniany pod płytę kartonowo-gipsową
8. Płyta kartonowo – gipsowa przykręcona
Przekrój dachu
9. Blachodachówka wraz z obróbkami blacharskimi oraz orynnowaniem
10. Łaty dachowe
11. Kontrłaty
12. Folia dachowa wiatroizolacja
13. Krokiew
14. Wełna 200 między krokwiami
15. Folia STROTEX AL folia paroizolacyjna aluminiowa dodatkowo dająca izolację ściany
16. Stelaż drewniany pod płyty
17. Płyta karton -gips przykręcona
Przekrój podłogi - strop
18. Podłogi z płyty OSB 22 mm gruba parter-poddasze ( można dowolnie wykończyć) lub podłoga drewniana świerkowa konstrukcyjna
19. Belki stropowe
20. Strop nad parterem ocieplenie wełną ISOVER 150 mm
21. Ruszt drewniany pod płytę kartonowo-gipsową
22. Płyta kartonowo – gipsowa przykręcona
Przekrój podłoga parter
23. Podłogi z płyty OSB 22 mm gruba parter ( można dowolnie wykończyć) lub podłoga drewniana świerkowa konstrukcyjna
( można stosować wylewkę mixokretem na styropianie - opcja do kalkulacji )
24. Podłoga parter ocieplenie wełną ISOVER 150 mm
25. Belki podłogowe parteru
26. Folia izolacyjna lub papa
Stolarka okienna oraz drzwiowa
27 Drzwi wewnętrzne komplet- (opcja dodatkowa za dopłatą )
28. Drzwi zewnętrzne
29. Stolarka okienna PVC S8000 IQ 6 komorowe
Parapety
30. Wewnętrzne konglomerat (jasne kolory)
31. Zewnętrzne metalowe zharmonizowane kolorystycznie z pokryciem dachu
Instalacje
32. Elektryczna po 2 punkty na jedno pomieszczenie ( 1 punkty światło plus 1 punkty gniazdo zakończone puszką)
Skrzynka wewnętrzna z bezpiecznikami
33. Wodno -kanalizacyjna 5 punkty odpływ – dopływ zakończone korkiem
34. CO- na jedno pomieszczenie jeden punkt instalacji zakończone korkiem
35. Komin z wkładem ceramicznym ocieplony pod kominek fi 200 z jedną wentylacją
36. Kominki 3 szt. wentylacyjne do łazienki, odpowietrzenie kanalizacji , okap kuchnia
Dodatkowe elementy
37. Ściany nośne oraz działowe wygłuszane wełną zgodnie z przekrojem według konstrukcji
38. Płyta karton gips -przykręcone
39. Klatka schodowa konstrukcyjna z blatami płyty OSB
41. Elewacja - okładzina zewnętrzna drewniana w wybranych miejscach
40 Dokumentacja techniczna - 6 egzemplarze z opracowaniami branżowymi.
Firma dodatkowo może wykonać:
Fundament – ławy kopane na gł. 1.20 m do ziemi + wyrównanie pod wylewkę poziomu środka fundamentu + izolacja cieplna / styropian , styrodur / osadzenie wg szablonu kotew ø 12 stalowych do kotwienia domu + wykonanie izolacji poziome z papy pod budowę domu + instalacje wodne i kanalizacyjne + elektryczne – przejście pod ogrzewanie gazowe.
Całość fundamentu jest wykonana zgodnie z projektem Architektonicznym wydanym przez firmę DREV-IMED.