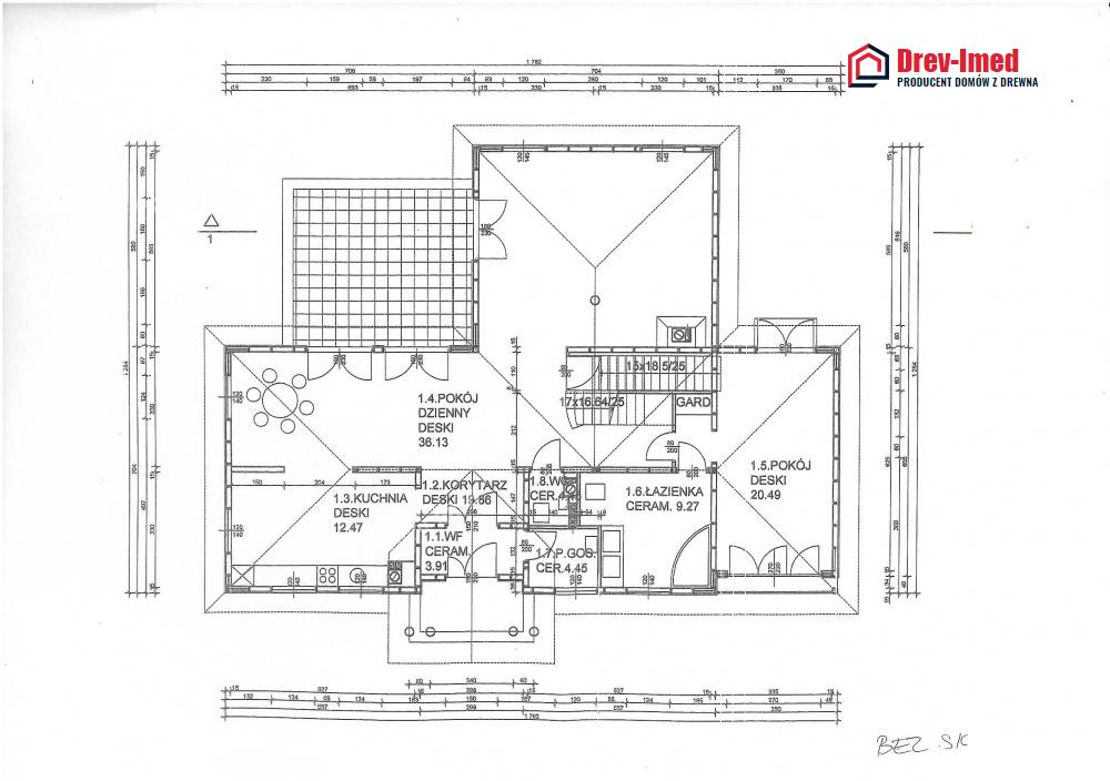
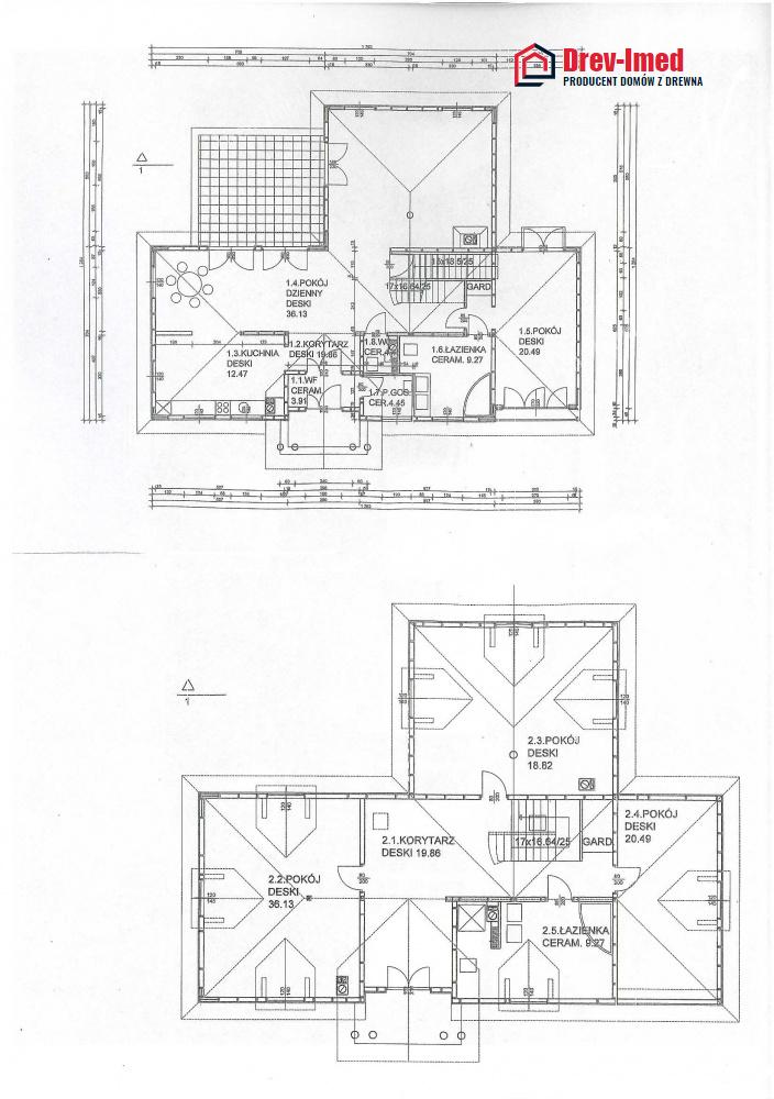
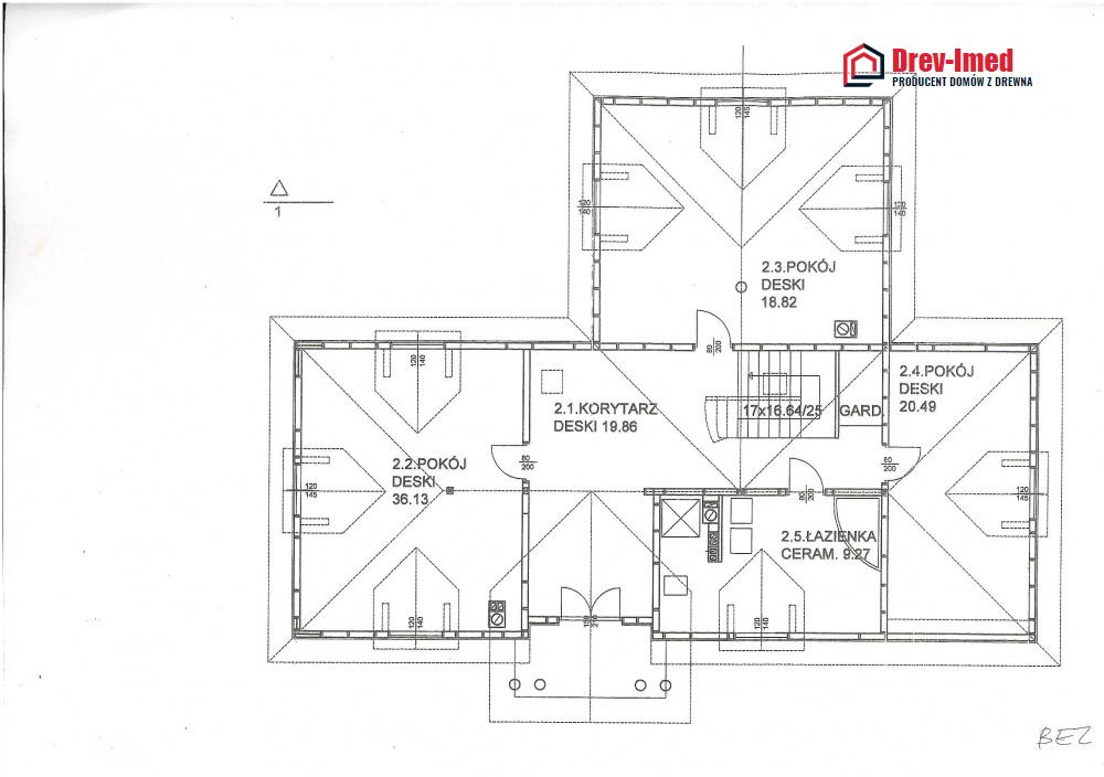
Rezydencja GLAMOUR

Opis budynku:

Rezydencja LUX- GLAMOUR - Budynek wykonany w technologi pasywnej z zastosowaniem najnowocześniejszej technologi Energo Plus. Nowoczesny , przestronny z luxsusowym wykończeniem wewnętrznym. Posiada okna Pasywne trzy szybowe, system rekuperacji , podłogi podgrzewane , wszystko sterowane elektronicznie.

 

 

Domy szkieletowe Bielsko

Szanowni Państwo

Spotkania  prosimy ustalać  telefonicznie.

DREV-IMED

Biuro obsługa klienta:  

43-300 Bielsko-Biała
ul. Krakowska 532 
tel. +48 509-216-542

 

Ewelina Maślanka

tel. +48 509-216-542

biuro@drevimed.pl

drevimed1.ewelina@gmail.com

 

 

 

 

Godziny otwarcia:

Pn - Pt : od 10:00 do 16:00

Sobota : od 10:00 do 13:00

Niedziela: Nieczynne

Ekspozycja nr 1:

ul. Krakowska 532, Bielsko-Biała

tel. +48 509-216-542

 

Ekspozycja nr 2:

 

więcej informacji.

Szanowni Państwo

Oglądanie ekspozycji DREV-IMED jest możliwe po wcześniejszym umówieniu telefonicznym. Serdecznie zapraszamy do zapisywania się dzwoniąc pod nr telefonów lub wyślij SMS w treści wpisując " Ekspozycja TAK" , a skontaktujemy się Tel kom . Orange 509 216 542

NIEDZIELE - Nieczynne

Zostaw swój kontakt :





Oddzwonimy wyślemy wiadomość- Hej!!!